share

Wonen in een cultuurhistorisch pand in het hart van Eindhoven

Maximaal inkomen en korting:

  • Om voor koop in aanmerking te komen mag je huishouden een maximum jaarinkomen hebben. Kijk voor het actuele maximale inkomen in de kortingstabel. Het huishoudinkomen dien je aan te tonen met een recente inkomstenverklaring. Je kunt deze aanvragen bij de Belastingdienst.
  • De koopprijs na Slimmer Kopen® korting is afhankelijk van de marktwaarde van de woning en je huishoudinkomen. In de kortingstabel kun je zien voor welk kortingspercentage je in aanmerking komt.
  • De marktwaarde in de advertentie is gebaseerd op een gevalideerd taxatierapport. Een taxatierapport is zes maanden geldig. De woning moet opnieuw getaxeerd worden zodra het taxatierapport is verlopen. In dat geval wordt de woning mogelijk tegen een andere marktwaarde aan je aangeboden dan waarvoor deze is geadverteerd. Als dat het geval is dan word je daarvan uiteraard op de hoogte gebracht.

Wonen in een historisch pand in het hart van Eindhoven

Ben je op zoek naar een modern en duurzaam appartement in hartje Eindhoven? Maar dan wel met een prachtige historische uitstraling? Aan de Prins Hendrikstraat hebben wij in 2025 zes compleet gerenoveerde appartementen opgeleverd. 

Over de appartementen

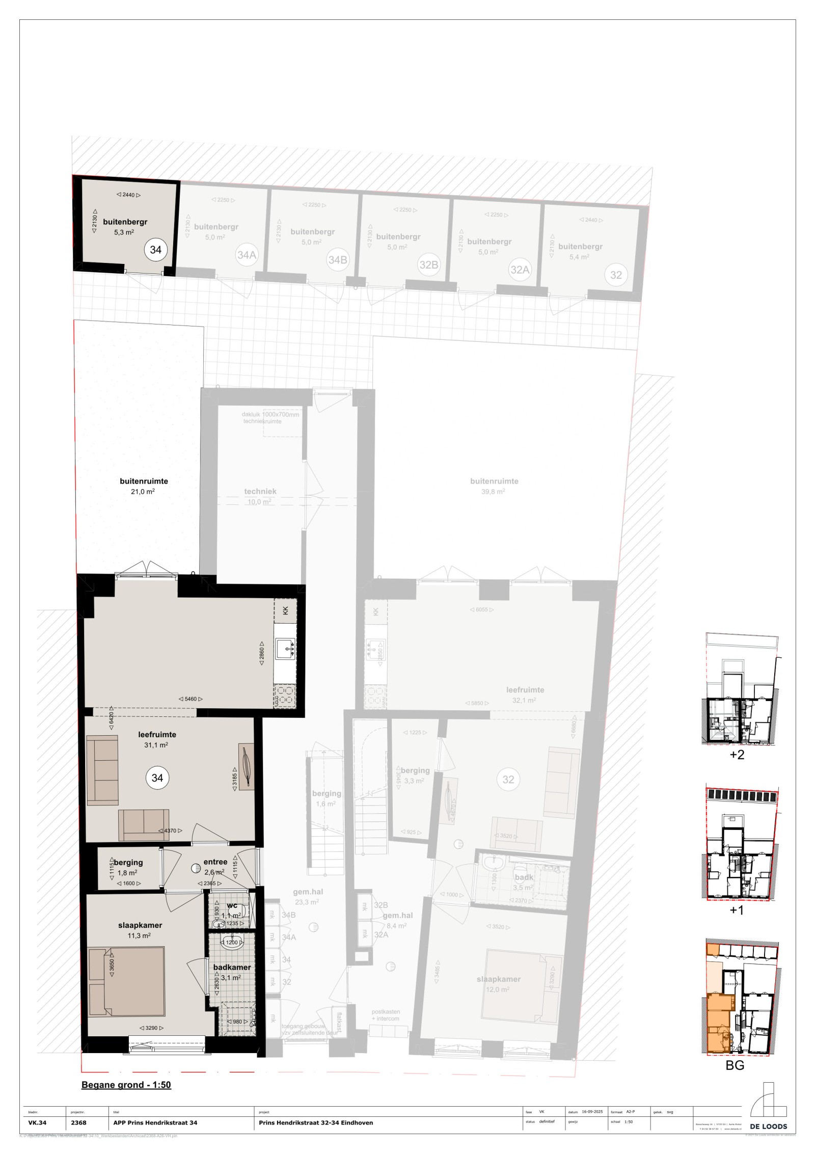
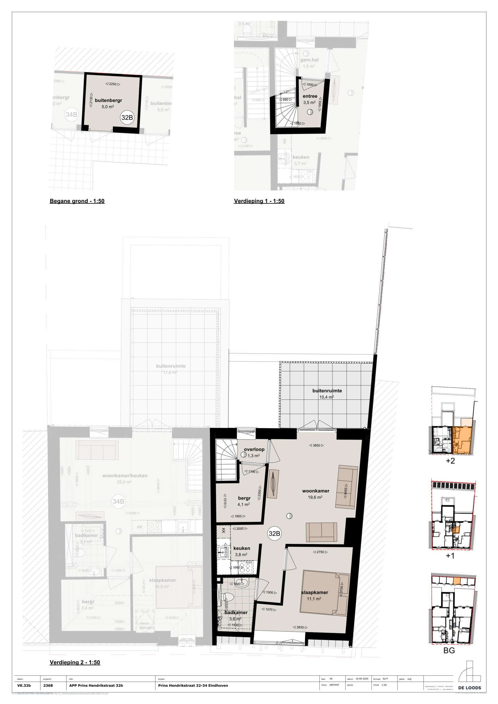
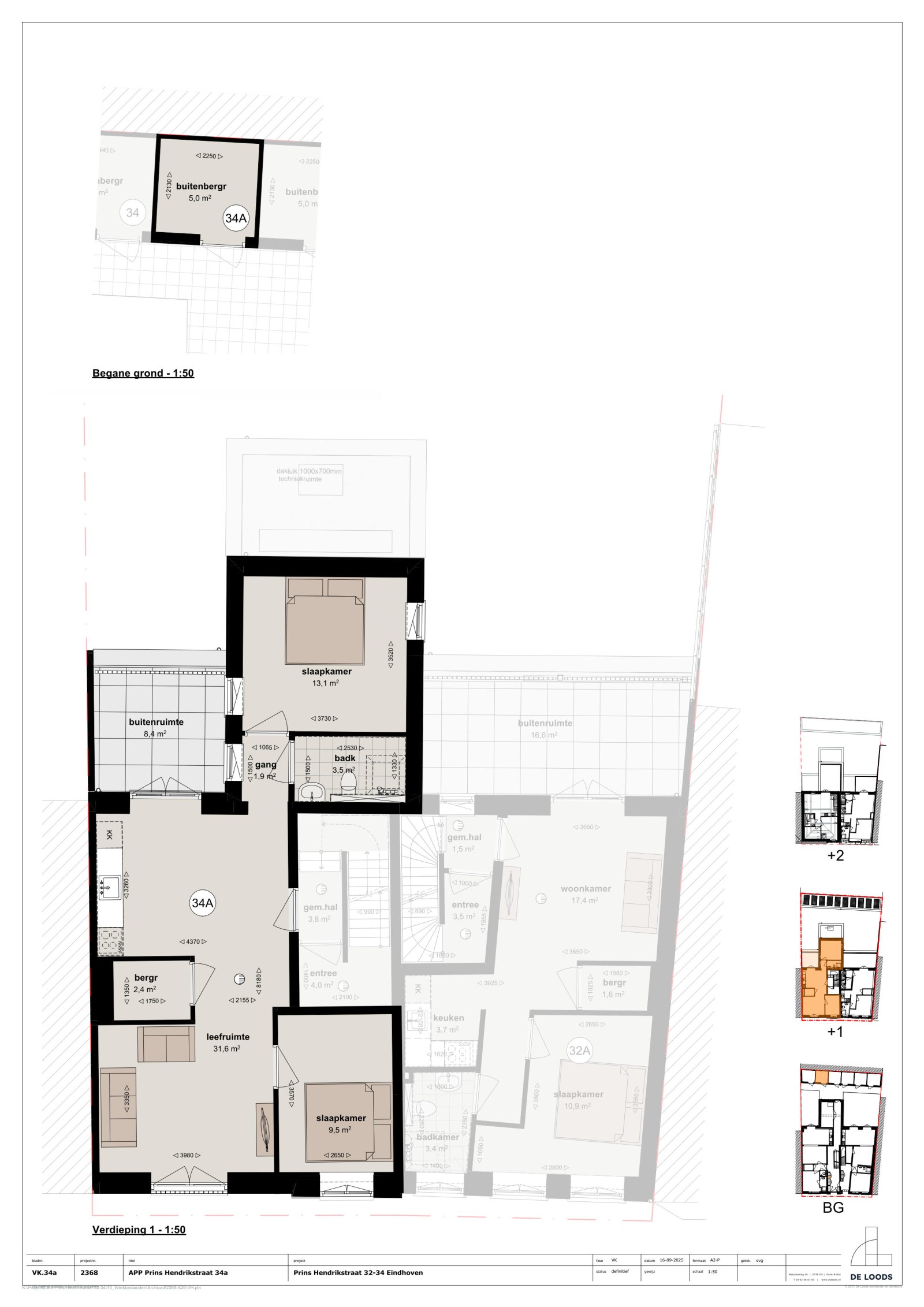
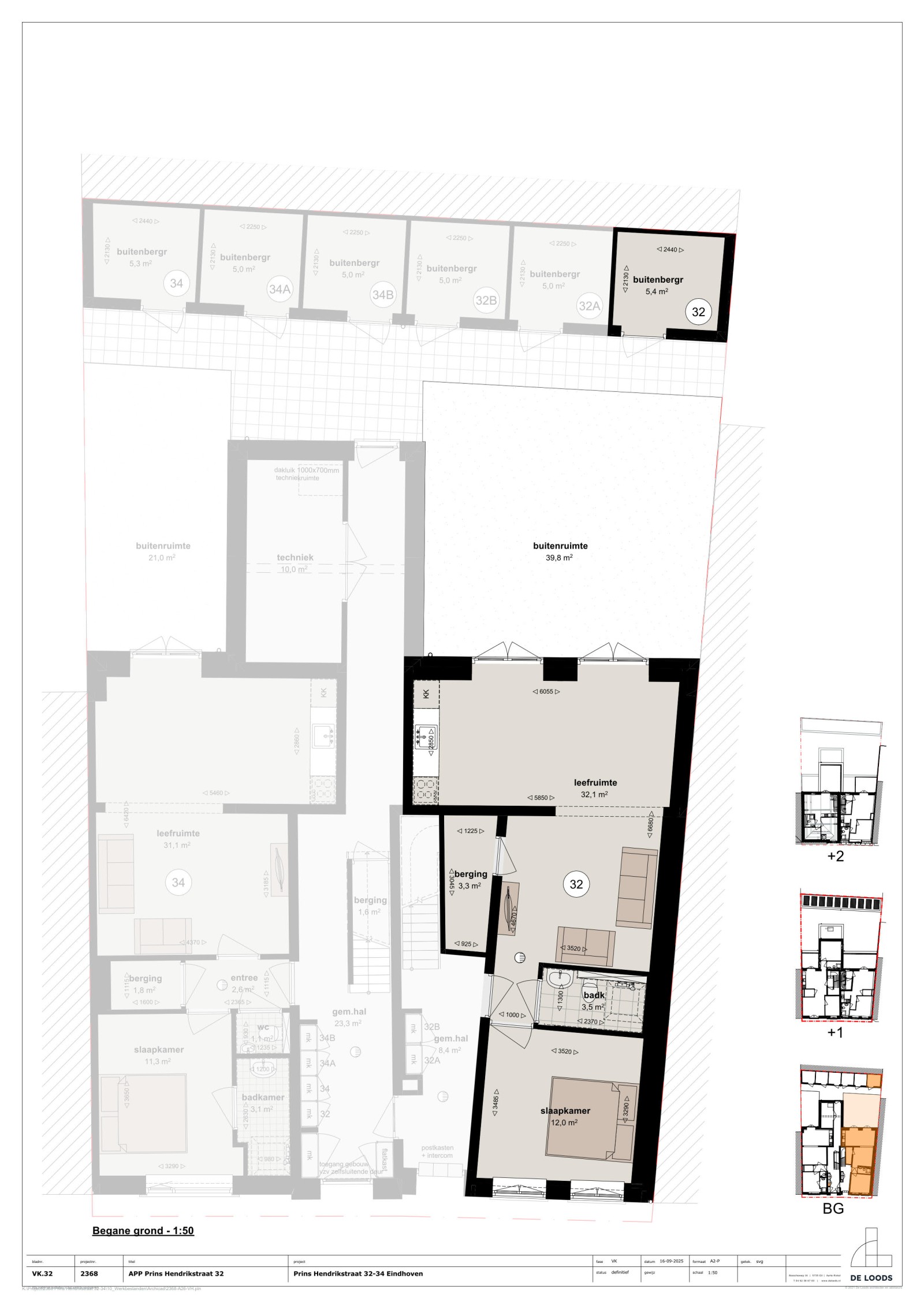
  • Op elke verdieping liggen twee appartementen, in totaal zes.
  • Alle woningen hebben een eigen buitenruimte: op de begane grond een tuin, en bij de andere appartementen een ruim balkon.
  • Iedere woning beschikt over een aparte buitenberging van ca. 5 m², ideaal voor fiets of extra opslag.
  • De appartementen zijn per trap bereikbaar. Er is geen lift aanwezig.

Duurzaam en comfortabel

Het historische gebouw is in 2025 grootschalig gerenoveerd en voldoet helemaal aan de eisen van nu.

  • Voor- en achtergevel zijn geïsoleerd, kozijnen vernieuwd en voorzien van HR++-glas.
  • Het dak is geïsoleerd en alle appartementen hebben Energielabel A++.
  • De woningen beschikken over vloerverwarming met koeling, WTW-ventilatie en duurzame warmte via een collectieve lucht-water warmtepomp.

Extra comfort

  • De appartementen op de eerste en tweede verdieping hebben een zwevende dekvloer en extra geluidsisolatie in de wanden. Dit draagt bij aan minder geluidsoverlast en een hoger wooncomfort.

Parkeren

  • Deze woningen beschikken niet over eigen parkeerplaatsen. Bewoners zijn hier aangewezen op het geldende parkeerbeleid van de gemeente. Informeer bij de gemeente naar de actuele regels rondom parkeren.

Vereniging van Eigenaars (VvE)

De appartementen maken deel uit van de in 2025 opgerichte VvE Prins Hendrikstraat 32, 32A, 32B, 34, 34A, 34B te Eindhoven. Als eigenaar ben je automatisch lid en betaal je een maandelijkse bijdrage. Hiermee wordt het onderhoud en beheer van de gezamenlijke onderdelen van het gebouw geregeld.

 

Koopalert Slimmer Kopen®
Meer informatie over Slimmer Kopen

Koopalert voor

  • Prins Hendrikstraat

Voorbeeld woning binnen dit koopalert

Plattegrond van de woning

Over deze woningen

6 appartementen in een historisch pand in het hart van Eindhoven

Ontdek de omgeving

Er zijn momenteel geen openstaande advertenties voor dit koopalert.